26 Natlee Crescent OLD BEACH TAS
- 3
- 2
- 2
FUTURISTIC HOME WITH STUNNING WATER VIEWS
Be impressed from the moment you view this key less entry home which unveils a futuristic luxury home design that effortlessly blends opulence with modernity. This home has a Triduim integrated controls system that allows you to control the electrics of the home from the palm of your hand. Control the lighting, under floor heating, home security and more from the convenience of your iPad or iPhone and enjoy all the modern conveniences on offer with this architecturally designed home
.
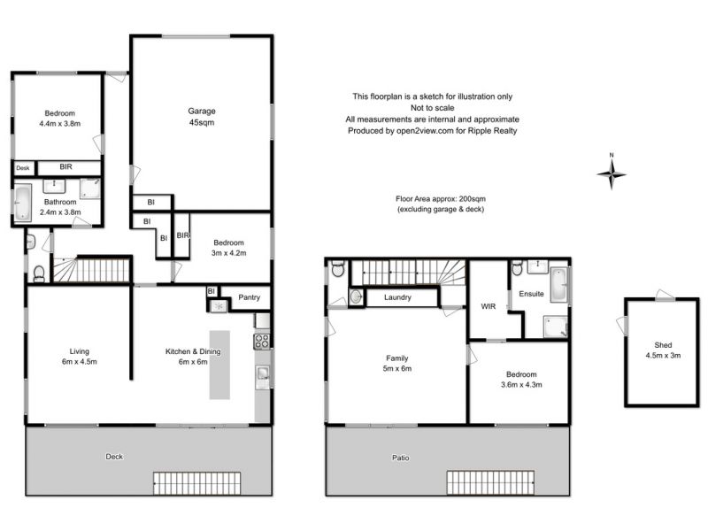
Set over 2 levels, the floor plan will suit a myriad of buyers from families, empty nesters and professional couples alike. There is so much to admire about this home from the immaculate presentation to seamless design spaces, neutral tones and sunny aspect.
The generously proportioned and light-filled interior showcases all of the appeal of its unique design with high ceilings, highlight windows, cat 5 networking, commercial grade heat pump hot water system, double glazing and sound proofing. On entering, the attention to detail is evident and the wide central hallway leads to the expansive open kitchen-dining space boasting a prestigious gourmet kitchen complete with all modern design features. Quality appliances, expansive bench spaces and plumbed in fridge freezer and a large walk in pantry will impress. Enjoy the water views and outlook of Mount Wellington from this spacious area where all year round entertaining is a breeze with the indoor/outdoor entertaining space that flows via double glazed sliding glass doors to the large outdoor deck area.
The accommodation consists of three spacious bedrooms, all with built in robes. The palatial master suite on the lower level boasts a large walk through robe to the luxurious ensuite with large walk in shower and free standing bath - enjoy the feeling of your own day spa at home! There is another family bathroom on the entry level with an indulgent free standing bath and separate shower.
Two large living spaces, one on each level provides space for all family members and also offers the options of a large home office or home theatre or even home gym. There is further outdoor living space with beautifully manicured lawn and garden area fully fenced for children or pets. There is a hidden separate laundry fully fitted with an abundance of storage and a third powder room on the lower level off the living space.
Internal access via the double garage with workshop space and additional off street parking for up to 3 other cars a boat or trailer completes this immaculate home.
Inspection is strictly by appointment only.
"We have obtained all information in this document from sources we believe to be reliable; however, we cannot guarantee its accuracy. Prospective purchasers are advised to carry out their own investigations".
.
Set over 2 levels, the floor plan will suit a myriad of buyers from families, empty nesters and professional couples alike. There is so much to admire about this home from the immaculate presentation to seamless design spaces, neutral tones and sunny aspect.
The generously proportioned and light-filled interior showcases all of the appeal of its unique design with high ceilings, highlight windows, cat 5 networking, commercial grade heat pump hot water system, double glazing and sound proofing. On entering, the attention to detail is evident and the wide central hallway leads to the expansive open kitchen-dining space boasting a prestigious gourmet kitchen complete with all modern design features. Quality appliances, expansive bench spaces and plumbed in fridge freezer and a large walk in pantry will impress. Enjoy the water views and outlook of Mount Wellington from this spacious area where all year round entertaining is a breeze with the indoor/outdoor entertaining space that flows via double glazed sliding glass doors to the large outdoor deck area.
The accommodation consists of three spacious bedrooms, all with built in robes. The palatial master suite on the lower level boasts a large walk through robe to the luxurious ensuite with large walk in shower and free standing bath - enjoy the feeling of your own day spa at home! There is another family bathroom on the entry level with an indulgent free standing bath and separate shower.
Two large living spaces, one on each level provides space for all family members and also offers the options of a large home office or home theatre or even home gym. There is further outdoor living space with beautifully manicured lawn and garden area fully fenced for children or pets. There is a hidden separate laundry fully fitted with an abundance of storage and a third powder room on the lower level off the living space.
Internal access via the double garage with workshop space and additional off street parking for up to 3 other cars a boat or trailer completes this immaculate home.
Inspection is strictly by appointment only.
"We have obtained all information in this document from sources we believe to be reliable; however, we cannot guarantee its accuracy. Prospective purchasers are advised to carry out their own investigations".
Features
- Air Conditioning
- Built-In Wardrobes
- Close to Schools
- Close to Shops
- Close to Transport
- Garden
- Secure Parking
- Polished Timber Floor
- Terrace/Balcony
- Triduim Integrated Control System