4 Garden Road MOONAH TAS
- 4
- 1
- 1
FAIRY-TALE HOME IN ARGUABLY THE BEST STREET IN MOONAH
Don't be mistaken - this truly represents a once in a lifetime opportunity to Acquire a stately yet palpably exquisite home.
The myriad period features of this home are a visual feast and include stunning pressed tin ceilings, fabulously maintained original fretwork, fire surrounds, timber panelling, striking original Tasmanian oak floorboards throughout amongst countless others.
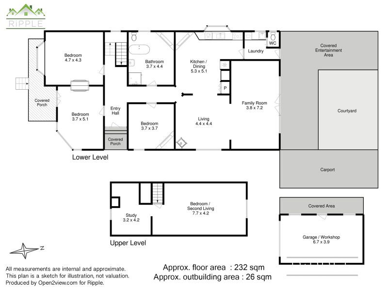
With dual sun filled living rooms, a simply outstanding oversized farmhouse style eat in kitchen, four generous character filled bedrooms and a bathroom so staggering in size it could accommodate a king-sized bed there is a delightful and aesthetically stunning feature at every turn.
French doors at the rear of this home lead to an expansive completely private entertainment area, the roofline covered in a charming vine that shrouds this space in stunning foliage, creating disbursed light that filters through invoking an ever-changing atmosphere of sparkling pattered sunshine. This is a space you will appreciate year-round in an abundance of style.
The grounds of this enviable home are an absolute delight - the front gardens a showcase of blooming white roses and the rear grounds meticulously landscaped with mature established trees and hedging that shroud the bespoke outbuilding which includes are large mezzanine space. This building can of course be utilised as a garage but lends itself to many alternate uses as there are several secure off-street vehicle spaces to use.
With a fully equipped park including all the fun children's play equipment close by, very close proximity to the Moonah mile and the ever-popular St Albi's restaurant, quality schools, art centre, specialty stores and eateries, this location leaves you spoilt for choice. Public transport or the bike track provide a prompt journey right into the CBD and of course you are merely moments' drive away from MONA.
From the utterly charming character filled front facade through to the bespoke outbuilding, every centimetre of this home will capture your heart and we simply cannot wait to afford you a tour of this incredible opportunity. This home will not be sold prior to the open home so please be reassured you WILL have an opportunity to view. Contact Angelina or Chris if you are unable to attend and we will do my utmost to accommodate a private inspection for you.
We have obtained all information in this document from sources we believe to be reliable; however, we cannot guarantee its accuracy. Prospective purchasers are advised to carry out their own investigations.
The myriad period features of this home are a visual feast and include stunning pressed tin ceilings, fabulously maintained original fretwork, fire surrounds, timber panelling, striking original Tasmanian oak floorboards throughout amongst countless others.
With dual sun filled living rooms, a simply outstanding oversized farmhouse style eat in kitchen, four generous character filled bedrooms and a bathroom so staggering in size it could accommodate a king-sized bed there is a delightful and aesthetically stunning feature at every turn.
French doors at the rear of this home lead to an expansive completely private entertainment area, the roofline covered in a charming vine that shrouds this space in stunning foliage, creating disbursed light that filters through invoking an ever-changing atmosphere of sparkling pattered sunshine. This is a space you will appreciate year-round in an abundance of style.
The grounds of this enviable home are an absolute delight - the front gardens a showcase of blooming white roses and the rear grounds meticulously landscaped with mature established trees and hedging that shroud the bespoke outbuilding which includes are large mezzanine space. This building can of course be utilised as a garage but lends itself to many alternate uses as there are several secure off-street vehicle spaces to use.
With a fully equipped park including all the fun children's play equipment close by, very close proximity to the Moonah mile and the ever-popular St Albi's restaurant, quality schools, art centre, specialty stores and eateries, this location leaves you spoilt for choice. Public transport or the bike track provide a prompt journey right into the CBD and of course you are merely moments' drive away from MONA.
From the utterly charming character filled front facade through to the bespoke outbuilding, every centimetre of this home will capture your heart and we simply cannot wait to afford you a tour of this incredible opportunity. This home will not be sold prior to the open home so please be reassured you WILL have an opportunity to view. Contact Angelina or Chris if you are unable to attend and we will do my utmost to accommodate a private inspection for you.
We have obtained all information in this document from sources we believe to be reliable; however, we cannot guarantee its accuracy. Prospective purchasers are advised to carry out their own investigations.