4 Alwyn Road LENAH VALLEY TAS
- 5
- 2
- 3
Stunning retro style
Ever wanted to time travel? Now you can fly back to the 1970s in your very own Tardis!
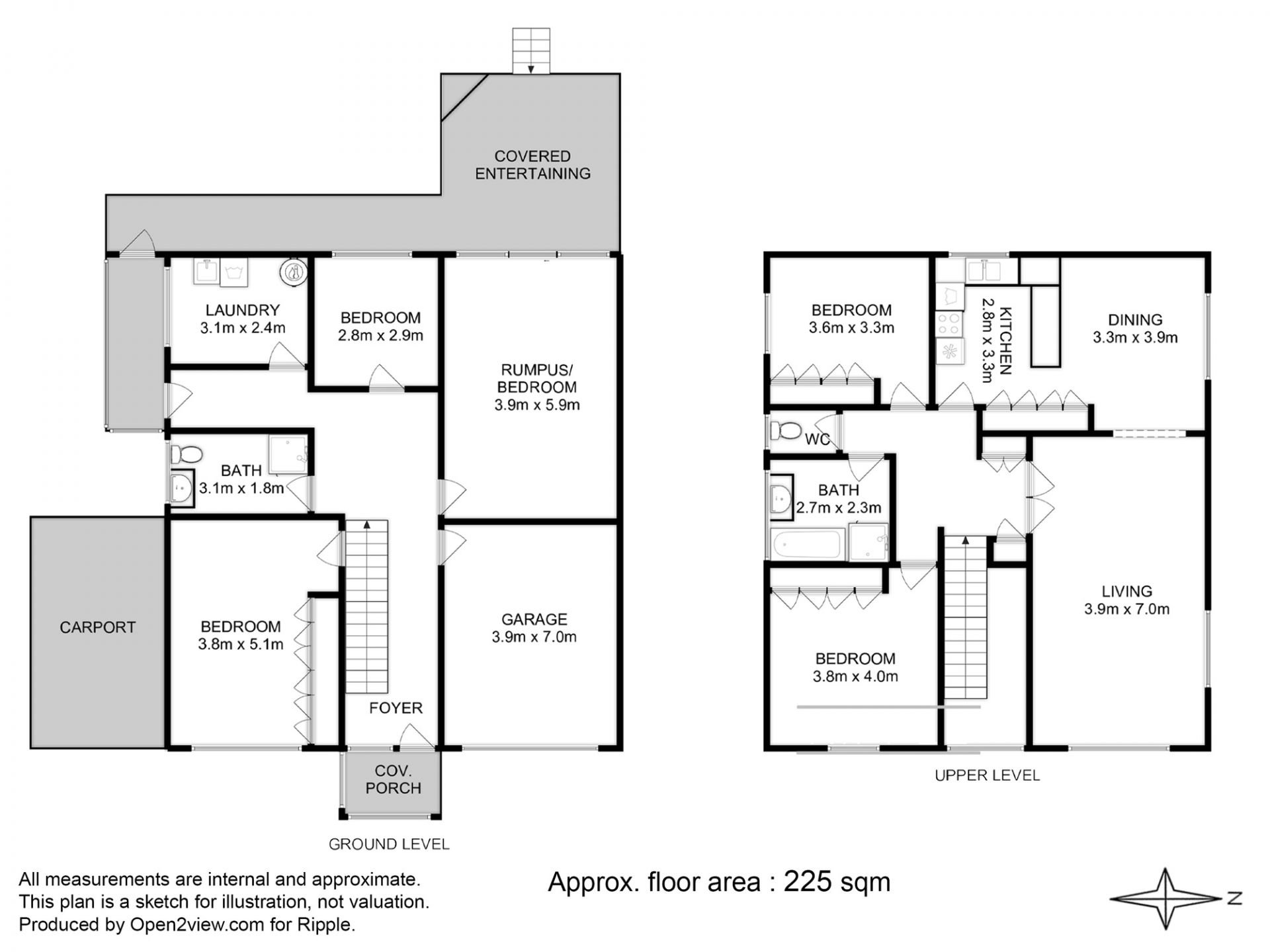
It's easy to believe that this expansive and sunny home could be bigger on the inside, with up to 5 bedrooms and impressive living spaces behind its unassuming exterior, all with a unique and glorious retro style.
True to its vintage, this 1973-built property is well maintained and solid, with fantastic original features such as the yellow bottle glass windows. This could be the fun and funky home you never knew you needed, or a quality foundation for all your renovation dreams.
Split across two levels, the home's elevated aspect makes the most of all-day sun and magnificent views of kunanyi/Mt Wellington, and an impressive double-height entry draws you inside with a spacious and welcoming feel.
Upstairs is a generous dining and kitchen area with plenty of storage, where you can marvel at those fabulous views while you work; or relax in the inviting and comfortable lounge. For your warmth and convenience, the home utilises gas cylinder heating.
There are two light and well-proportioned bedrooms on this level, both with excellent built-in storage and a pleasant outlook, and there is a family bathroom with separate toilet here too.
The home's lower level consists of two more bedrooms, a convenient second bathroom, and a multi-purpose room. This area provides ample sleeping space for all the family, or would make a wonderful home office, rumpus or a private guest accommodation. There is also the added bonus of under house storage approximately 11m X 3m with full head height clearance that has been previously utilized as a wine cellar.
Soak in the fresh air and sunshine from the wide deck with a mountain-facing vista and lovely outlook over the low maintenance rear yard. You will also find a garage with internal access to the home, a carport and off-street parking - all set on a 711 sqm block. The carport driveway conveniently goes all the way into the back yard, ideal for caravans, boats or a trailer.
Conveniently located just 10 minutes' drive from central Hobart, and in close proximity of many local services - take a stroll to bustling Lenah Valley village for a coffee or shopping essentials, and all the amenities of New Town Plaza or Northgate shopping centre are less than 10 minutes from home.
A handy bus service operates right along Augusta Rd and there are many reputable schools, as well as Calvary Hospital nearby. Walk to John Turnbull Park - with a dedicated dog exercise area, playground and picnic facilities - or to New Town Rivulet Park, which provides access to Wellington Reserve and the many walking and mountain bike tracks for exploring the area.
Unique, charming and with all the space you could possibly need, this one-of-a-kind property puts comfort and convenience front and centre. Contact Mel today to schedule a time to view this exceptional family home, and get ready to fall in love with a vintage masterpiece.
"We have obtained all information in this document from sources we believe to be reliable; however, we cannot guarantee its accuracy. Prospective purchasers are advised to carry out their own investigations".
It's easy to believe that this expansive and sunny home could be bigger on the inside, with up to 5 bedrooms and impressive living spaces behind its unassuming exterior, all with a unique and glorious retro style.
True to its vintage, this 1973-built property is well maintained and solid, with fantastic original features such as the yellow bottle glass windows. This could be the fun and funky home you never knew you needed, or a quality foundation for all your renovation dreams.
Split across two levels, the home's elevated aspect makes the most of all-day sun and magnificent views of kunanyi/Mt Wellington, and an impressive double-height entry draws you inside with a spacious and welcoming feel.
Upstairs is a generous dining and kitchen area with plenty of storage, where you can marvel at those fabulous views while you work; or relax in the inviting and comfortable lounge. For your warmth and convenience, the home utilises gas cylinder heating.
There are two light and well-proportioned bedrooms on this level, both with excellent built-in storage and a pleasant outlook, and there is a family bathroom with separate toilet here too.
The home's lower level consists of two more bedrooms, a convenient second bathroom, and a multi-purpose room. This area provides ample sleeping space for all the family, or would make a wonderful home office, rumpus or a private guest accommodation. There is also the added bonus of under house storage approximately 11m X 3m with full head height clearance that has been previously utilized as a wine cellar.
Soak in the fresh air and sunshine from the wide deck with a mountain-facing vista and lovely outlook over the low maintenance rear yard. You will also find a garage with internal access to the home, a carport and off-street parking - all set on a 711 sqm block. The carport driveway conveniently goes all the way into the back yard, ideal for caravans, boats or a trailer.
Conveniently located just 10 minutes' drive from central Hobart, and in close proximity of many local services - take a stroll to bustling Lenah Valley village for a coffee or shopping essentials, and all the amenities of New Town Plaza or Northgate shopping centre are less than 10 minutes from home.
A handy bus service operates right along Augusta Rd and there are many reputable schools, as well as Calvary Hospital nearby. Walk to John Turnbull Park - with a dedicated dog exercise area, playground and picnic facilities - or to New Town Rivulet Park, which provides access to Wellington Reserve and the many walking and mountain bike tracks for exploring the area.
Unique, charming and with all the space you could possibly need, this one-of-a-kind property puts comfort and convenience front and centre. Contact Mel today to schedule a time to view this exceptional family home, and get ready to fall in love with a vintage masterpiece.
"We have obtained all information in this document from sources we believe to be reliable; however, we cannot guarantee its accuracy. Prospective purchasers are advised to carry out their own investigations".